
🔹 Introduction:
In today’s competitive real estate market across the Netherlands, Germany, Belgium, the UK, USA, and Europe, accurate and visually appealing property presentations are essential.
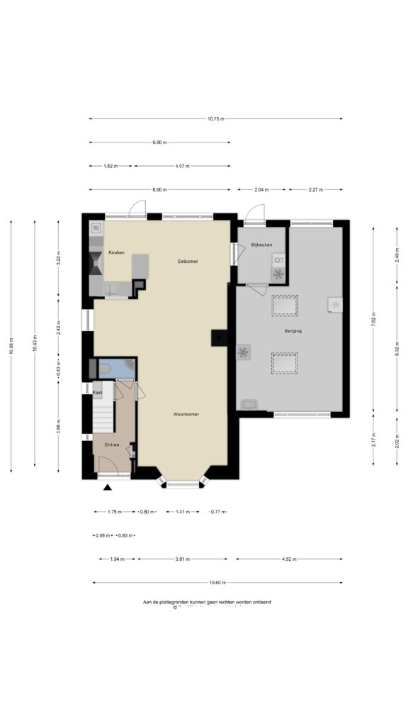
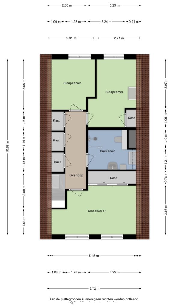
We recently completed a project where we transformed a point cloud scan into detailed 2D and 3D floor plans, including a complete garden layout and NEN2580 measurement report.
This type of service is becoming increasingly important for real estate agents, property developers, and architects who want to present their properties professionally and sell faster.
🔹 Project Overview:
For this project, our client provided a point cloud scan file, and our task was to convert it into:
- High-quality 2D Floor Plan
- Realistic 3D Floor Plan
- Detailed Garden Layout
- Accurate Measurement Report (NEN2580 standard)
We ensured every detail was precisely aligned with the scan data to maintain maximum accuracy.






🔹 Our Process (Point Cloud to Floor Plan):
Our workflow is designed to deliver accurate and professional results:
- Point Cloud Analysis
- Cleaning and understanding the scan data
- 2D Floor Plan Creation
- Accurate walls, doors, windows, and dimensions
- 3D Floor Plan Development
- Adding textures, furniture, and realistic visuals
- Garden & Exterior Layout
- Outdoor space visualization
- Measurement Report (NEN2580)
- Fully compliant with Dutch real estate standards
🔹 Why This Service is Important:
A professional floor plan is not just a drawing — it directly impacts property sales.
Key Benefits:
- ✅ Accurate property size representation (NEN2580 compliant)
- ✅ Better property listing performance
- ✅ Increased buyer interest and engagement
- ✅ Faster decision-making for buyers
- ✅ Professional presentation for real estate platforms
🔹 Who Needs This Service?
Our floor plan and measurement services are ideal for:
- Real Estate Agents (Netherlands, UK, USA, Europe)
- Property Developers
- Real Estate Marketing Agencies
- Architects & Interior Designers
🔹 Tools & Standards We Use:
- Floorplanner (for 2D & 3D visualization)
- Point Cloud Processing Techniques
- NEN2580 Measurement Standard (Netherlands)
🔹 Service Coverage (Global Reach 🌍):
Although this project was completed for a client in the Netherlands,
we provide services internationally, including:
- Netherlands
- Germany
- Belgium
- United Kingdom
- United States
- Entire Europe
🔹 Why Choose ProDev24?
At ProDev24, we focus on delivering:
- High accuracy from point cloud data
- Clean and modern floor plan designs
- Fast turnaround time
- International standard compliance (NEN2580)
- Reliable communication for global clients
Looking for Point Cloud to 2D or 3D Floor Plan services?
We help real estate professionals across Europe and worldwide turn their scan data into professional, ready-to-use floor plans.
👉 Contact us today to discuss your project.